Добро пожаловать на http://vipplan.ru

Випплан Дмитров - это тысячи проектов домов в нашем каталоге!

Вы всегда сможете найти для себя проект дома вашей мечты! Даже если этого не случилось, мы готовы в любую минуту предложить проект индивидуального дома.

Забыли пароль?
Вы еще не регистрировались?

Перейдите по ссылке ниже на страницу регистрации.

Регистрация...

Внимание!!!

В проектную документацию могут быть внесены изменения любой сложности, в соответствии в Вашими пожеланиями!

Полезные статьи

Выбор проекта дома в Дмитрове. Типовой или индивидуальный?

Строительство дома начинается с выбора проекта. От него будет зависит удобство, комфорт и функциональность Вашего будущего дома. Какой проект выбрать? В каталоге проектов домов VIPplan Дмитров предоставлен огромный выбор проектов на любой вкус и кошелек. В итоге выбор сводится к покупке типового проекта дома или заказа индивидуального проекта. Для упращения задачи, расскажем о каждом варианте по отдельности...

Типы и разновидности кровли

Кровля состоит из сплошного настила, стяжки и обрешетки, поддерживающих стропила и несколько слоев изоляции, призванных уберечь кровельное пространство от негативного воздействия пара и влаги....

Проекты домов и коттеджей > Каталог проектов домов > Дом с мансардой и террасой Vg1116

Дом с мансардой и террасой Vg1116

Дом с мансардой и  террасой
Зарегистрируйтесь

Проект № Vg1116


Техническое описание
Общая площадь: 113.85 м2
Жилая площадь: 75.26 м2
Высота здания: 7.82 м
Размеры дома: 12.55м×9.56м
Кол-во комнат: 5
Цокольный этаж: нет
Гараж: нет
Мансарда: есть

Kонструкция
Фундамент: Ленточный, монолитный ж/б
Перекрытия: Ж/б плиты
Материал стен: Газобетон

Архитектурный раздел
Конструктивный раздел
Инженерный раздел
АР+КР - 48 000 (Со скидкой 20%)
АР+КР+ИР - 87 900 (Со скидкой 50%)
Проект индивидуального одноэтажного жилого дома с мансардой с размерами здания 12,55 x 9,56 м. Наружная отделка здания – сайдинг. Фундамент – ленточный монолитный ж/б (под несущими стенами). Наружные стены – из пенобетонных блоков с облицовкой сайдингом. Внутренние стены - из пенобетонных блоков. Перегородки – из пенобетонных блоков. Пол первого этажа - пол по грунту. Межэтажное перекрытие - ж/б плиты перекрытия. Крыша многоскатная. Кровля – металлочерепица. Окна - металлопластиковые, выполненные по индивидуальному заказу.
Генплан застройки участка / Паспорт проекта 7000 руб / 10000 руб
Инженерный раздел (полный) 39900 руб (57000 руб)
Смета на строительство 28500 руб
Теплотехнический расчет материалов стен Бесплатно
Стоимость проекта со незначительнми изменениями 57150 руб
Стоимость проекта со средними изменениями* 65700 руб
Стоимость проекта со значительными изменениями** 68000 руб

План первого этажа


Кухня — 22,93 кв м
Холл — 9,50 кв м
Кабинет — 8,40 кв м
Кладовая — 2,14 кв м
Терраса — 13,73 кв м
С/у — 1,73 кв м
Ванная — 2,59 кв м
Прихожая — 5,04 кв м
Бойлерная — 3,27 кв м
Крыльцо — 5,27 кв м

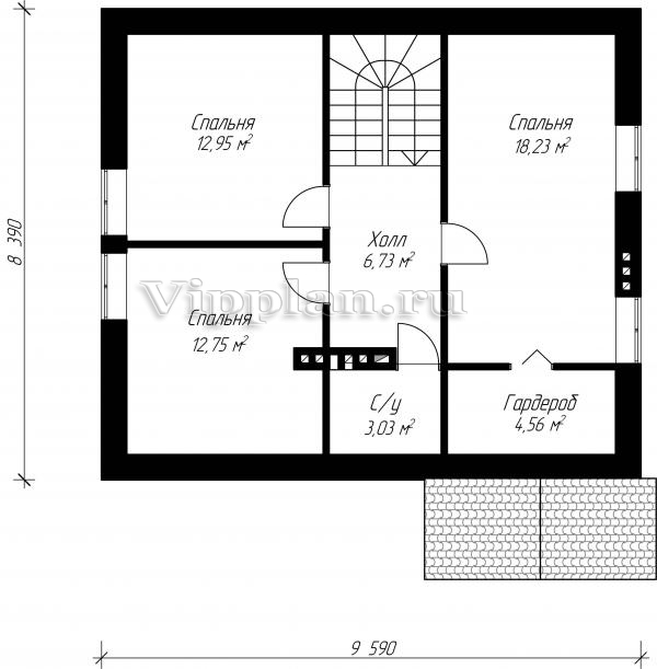
План мансардного этажа


Спальня — 12,95 кв м
С/у — 3,03 кв м
Спальня — 12,75 кв м
Холл — 6,73 кв м
Спальня — 18,23 кв м
Гардероб — 4,56 кв м
Дом с мансардой и  террасой Дом с мансардой и  террасой Дом с мансардой и  террасой Дом с мансардой и  террасой

Модификации проектов

Внесение изменений и привязка к участку строительства

В любой из проектов от компании VIPplan - Дмитров по вашему желанию могут быть внесены изменения в материалы стен, материалы наружной отделки дома, а также будет произведена адаптация проекта под конкретный регион строительства (с учетом грунтов региона, геологических особенностей вашего участка и местных климатических условий) - БЕСПЛАТНО !!! (кроме проектов со скидкой и проектов наших партнеров).

Любой из проектов, размещенных на сайте dmitrov.vipplan.ru мы можем выполнить из требуемых вам строительных материалов: ячеистый бетон (газобетон, пеноблок), керамоблок, кирпич, шлакоблок, бетонный блок, дерево (брус, клееный брус), каркасная технология (деревянный каркас, металлокаркас (ЛСТК)).

Фасад дома и его наружную отделку так же возможно выполнить с применением различных облицовочных материалов: структурной штукатурки, (с утеплителем и без), сайдингом (пластиковый или металлосайдинг), фиброплитами, кирпича.

 
6 Избранные
проекты

Доставка проектов по России: Москва (Московская область), Санкт-Петербург (Ленинградская область), Краснодар, Ростов-на-Дону, Ставрополь, Сочи, Волгоград, Новосибирск, Белгород, Брянск, Воронеж, Саратов, Хабаровск, Астрахань, Нальчик, Владикавказ, Екатеринбург, Тюмень, Самара, Нижний Новгород, Казань, Пермь, Уфа, Челябинск, Красноярск, Ханты-Мансийск, Иркутск, Курган, Оренбург, Омск, Томск, Барнаул, Новокузнецк, Кемерово, Абакан, Чита, Якутск, Южно-Сахалинск, Петропавловск-Камчатский и страны ближнего зарубежья: Белоруссия, Украина, Казахстан