Добро пожаловать на http://vipplan.ru

Випплан Дмитров - это тысячи проектов домов в нашем каталоге!

Вы всегда сможете найти для себя проект дома вашей мечты! Даже если этого не случилось, мы готовы в любую минуту предложить проект индивидуального дома.

Забыли пароль?
Вы еще не регистрировались?

Перейдите по ссылке ниже на страницу регистрации.

Регистрация...

Внимание!!!

В проектную документацию могут быть внесены изменения любой сложности, в соответствии в Вашими пожеланиями!

Полезные статьи

Виды бассейнов

В наше время, строительство бассейна на территории своего участка, не такая уж и роскошь. Выбор видов и стилей бассейна, на сегодняшний день, очень большой....

Выбор бригады строителей в Дмитрове

Перед началом строительства дома перед будущим хозяином загородной недвижимости в Московской области обозначится несколько вариантов: обратиться в строительную компанию, специализирующуюся на малоэтажном коттеджном строительстве, воспользоваться услугами частной бригады; строить самому "своими руками"....

Проекты домов и коттеджей > Каталог проектов домов > Проект индивидуального одноэтажного жилого дома с мансардой Vg167

Проект индивидуального одноэтажного жилого дома с мансардой Vg167

Проект индивидуального одноэтажного жилого дома с мансардой
Зарегистрируйтесь

Проект № Vg167


Техническое описание
Общая площадь: 152 м2
Площадь гаража 21.04 м2
Высота здания: 9.88 м
Размеры дома: 11м×6м
Кол-во комнат: 4
Цокольный этаж: нет
Гараж: есть
Мансарда: есть

Kонструкция
Фундамент: Ленточный монолитный ж/б
Отделка дома: Фасадная штукатурка
Перекрытия: Сборные ж/б плиты перекрытия
Материал стен: Наружные стены запроектированы из: керамзитобетонных блоков, утеплителя и штукатурки. Внутренние стены и перегородки - из керамзитобетонных и гипсовых блоков

Архитектурный раздел
Конструктивный раздел
АР+КР - 56 000 (Со скидкой 20%)


Проект индивидуального одноэтажного жилого дома с мансардой с размерами 10,72 x 16,42 м. 
Наружная отделка здания – фасадная штукатурка.
Цоколь – клинкерная плитка.
Фундамент – ленточный монолитный ж/б.
Наружные стены запроектированы из: керамзитобетонных блоков, утеплителя и штукатурки.
Внутренние стены и перегородки - из керамзитобетонных и гипсовых блоков.
Перемычки - монолитные и сварные из профиля проката.
Перекрытие межэтажное –  сборные ж/б плиты перекрытия. 
Пол этажа – пол по грунту.
Крыша - двускатная. Материал кровли – битумная черепица (мягкая кровля).
Окна - металлопластиковые, выполненные по индивидуальному заказу. 
Лестница  выполняется  по индивидуальному заказу. 
 
 
Технико-экономические показатели
 
Общая площадь помещений - 152,33 м2
Этажность - 1 с мансардой
Высота здания - 9,88 от отметки ур. земли до конька
 

Генплан застройки участка / Паспорт проекта 7000 руб / 10000 руб
Инженерный раздел (полный) 76000 руб
Смета на строительство 38000 руб
Теплотехнический расчет материалов стен Бесплатно
Стоимость проекта со незначительнми изменениями 66200 руб
Стоимость проекта со средними изменениями* 77600 руб
Стоимость проекта со значительными изменениями** 80600 руб

План первого этажа


Гостиная - 23,09 м2
Кабинет - 9,20 м2
Холл - 8,98 м2
Тамбур - 3,45 м2
Кухня - 12 м2
Кладовая - 1,50 м2
С/у - 3,45 м2
Бойлерная - 4,83 м2
Гараж - 21,04 м2

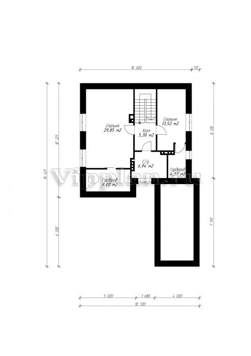
План мансардного этажа


Холл - 5,30 м2
Спальня 29,85 м2
Гардероб - 8 м2
Спальня 13,52 м2
Гардероб - 4,37 м2
С/у - 6,94 м2
Проект индивидуального одноэтажного жилого дома с мансардой Проект индивидуального одноэтажного жилого дома с мансардой Проект индивидуального одноэтажного жилого дома с мансардой Проект индивидуального одноэтажного жилого дома с мансардой
Внесение изменений и привязка к участку строительства

В любой из проектов от компании VIPplan - Дмитров по вашему желанию могут быть внесены изменения в материалы стен, материалы наружной отделки дома, а также будет произведена адаптация проекта под конкретный регион строительства (с учетом грунтов региона, геологических особенностей вашего участка и местных климатических условий) - БЕСПЛАТНО !!! (кроме проектов со скидкой и проектов наших партнеров).

Любой из проектов, размещенных на сайте dmitrov.vipplan.ru мы можем выполнить из требуемых вам строительных материалов: ячеистый бетон (газобетон, пеноблок), керамоблок, кирпич, шлакоблок, бетонный блок, дерево (брус, клееный брус), каркасная технология (деревянный каркас, металлокаркас (ЛСТК)).

Фасад дома и его наружную отделку так же возможно выполнить с применением различных облицовочных материалов: структурной штукатурки, (с утеплителем и без), сайдингом (пластиковый или металлосайдинг), фиброплитами, кирпича.

 
6 Избранные
проекты

Доставка проектов по России: Москва (Московская область), Санкт-Петербург (Ленинградская область), Краснодар, Ростов-на-Дону, Ставрополь, Сочи, Волгоград, Новосибирск, Белгород, Брянск, Воронеж, Саратов, Хабаровск, Астрахань, Нальчик, Владикавказ, Екатеринбург, Тюмень, Самара, Нижний Новгород, Казань, Пермь, Уфа, Челябинск, Красноярск, Ханты-Мансийск, Иркутск, Курган, Оренбург, Омск, Томск, Барнаул, Новокузнецк, Кемерово, Абакан, Чита, Якутск, Южно-Сахалинск, Петропавловск-Камчатский и страны ближнего зарубежья: Белоруссия, Украина, Казахстан