Добро пожаловать на http://vipplan.ru

Випплан Дмитров - это тысячи проектов домов в нашем каталоге!

Вы всегда сможете найти для себя проект дома вашей мечты! Даже если этого не случилось, мы готовы в любую минуту предложить проект индивидуального дома.

Забыли пароль?
Вы еще не регистрировались?

Перейдите по ссылке ниже на страницу регистрации.

Регистрация...

Внимание!!!

В проектную документацию могут быть внесены изменения любой сложности, в соответствии в Вашими пожеланиями!

Полезные статьи

Печи и камины в частном доме

Спросите любого человека, и вы поймете, что каждый человек мечтает иметь свой собственный дом, который он сможет обустроить так, как ему хочется. Этот дом будет полон уюта, тепла, света и комфорта, а главное, что, придя с работы, человек сможет запросто отдохнуть у своего очага.  Нет никакой альтернативы перед выбором печи или камина. Эти две вещи не сможет  заменить ни искусственный свет, ни солнечное освещение. Камин и печь, с древности, считаются предметом роскоши. Ни один большой дом не может обойтись без них, поскольку если удастся сесть и посидеть перед этим местом, то долго нельзя будет...

Приготовление раствора для наливного пола

Если вы хотите чтобы пол получился ровным, наливные полы – лучший вариант. Особое внимание следует уделить приготовлению раствора. А все потому, что после нанесения на цементную стяжку или бетонное основание внести коррективы или изменить что-либо уже не получится. Поэтому к замешиванию раствора стоит подходить очень внимательно....

Проекты домов и коттеджей > Каталог проектов домов > Проект одноэтажного дома с мансардой и гаражом на 2 машины Vg2293

Проект одноэтажного дома с мансардой и гаражом на 2 машины Vg2293

Проект одноэтажного дома с мансардой и гаражом на 2 машины
Зарегистрируйтесь

Проект № Vg2293


Техническое описание
Общая площадь: 203.37 м2
Жилая площадь: 82.42 м2
Высота здания: 8.87 м
Размеры дома: 15.54м×14.04м
Кол-во комнат: 5
Цокольный этаж: нет
Гараж: нет
Мансарда: есть

Kонструкция
Фундамент: Ленточный из блоков ФБС
Перекрытия: по деревянным балкам
Материал стен: Газобетон

Архитектурный раздел
Конструктивный раздел
АР+КР - 64 000 (Со скидкой 20%)
Проект индивидуального одноэтажного жилого дома с мансардой и гаражем на 2 машины с размерами здания 15,54 x 14,04 м. Наружная отделка здания – фасадная штукатурка 2х цветов. Фундамент – ленточный из блоков ФБС (под несущими стенами). Наружные стены – газобетонные блоки с утеплением минеральной ватой и отделкой фасадной штукатуркой. Внутренние стены - газобетонные блоки. Перегородки 1 эт - гипсовые блоки, перегородки мансарды - ГКЛ на металлическом каркасе. Пол первого этажа - монолитная ж/б плита. Межэтажное перекрытие — по деревянным балкам. Крыша многоскатная. Кровля – битумная черепица. Лестница - металлическая, по индивидуальному заказу. Окна — металлопластиковые
Генплан застройки участка / Паспорт проекта 7000 руб / 10000 руб
Инженерный раздел (полный) 101500 руб
Смета на строительство 50750 руб
Теплотехнический расчет материалов стен Бесплатно
Стоимость проекта со незначительнми изменениями 74900 руб
Стоимость проекта со средними изменениями* 90200 руб
Стоимость проекта со значительными изменениями** 94200 руб

План первого этажа


Тамбур — 5,38 кв м
Холл — 11,98 кв м
Кладовая — 1,33 кв м
Кухня — 10,74 кв м
Гостиная — 35,76 кв м
Кабинет — 12,80 кв м
Бойлерная — 4,96 кв м
Гараж — 44,06 кв м
С/у — 2,96 кв м

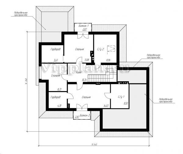
План мансардного этажа


Холл — 10,74 кв м
С/у 1 — 8,50 кв м
Спальня — 14,07 кв м
Гардероб — 4,19 кв м
Спальня — 8,71 кв м
Гардероб — 5,43 кв м
Спальня— 11,08 кв м
С/у 2— 8,96 кв м
Балкон 1— 0,86 кв м
Балкон 2— 0,86 кв м
Проект одноэтажного дома с мансардой и гаражом на 2 машины Проект одноэтажного дома с мансардой и гаражом на 2 машины Проект одноэтажного дома с мансардой и гаражом на 2 машины Проект одноэтажного дома с мансардой и гаражом на 2 машины

Модификации проектов

Внесение изменений и привязка к участку строительства

В любой из проектов от компании VIPplan - Дмитров по вашему желанию могут быть внесены изменения в материалы стен, материалы наружной отделки дома, а также будет произведена адаптация проекта под конкретный регион строительства (с учетом грунтов региона, геологических особенностей вашего участка и местных климатических условий) - БЕСПЛАТНО !!! (кроме проектов со скидкой и проектов наших партнеров).

Любой из проектов, размещенных на сайте dmitrov.vipplan.ru мы можем выполнить из требуемых вам строительных материалов: ячеистый бетон (газобетон, пеноблок), керамоблок, кирпич, шлакоблок, бетонный блок, дерево (брус, клееный брус), каркасная технология (деревянный каркас, металлокаркас (ЛСТК)).

Фасад дома и его наружную отделку так же возможно выполнить с применением различных облицовочных материалов: структурной штукатурки, (с утеплителем и без), сайдингом (пластиковый или металлосайдинг), фиброплитами, кирпича.

 
6 Избранные
проекты

Доставка проектов по России: Москва (Московская область), Санкт-Петербург (Ленинградская область), Краснодар, Ростов-на-Дону, Ставрополь, Сочи, Волгоград, Новосибирск, Белгород, Брянск, Воронеж, Саратов, Хабаровск, Астрахань, Нальчик, Владикавказ, Екатеринбург, Тюмень, Самара, Нижний Новгород, Казань, Пермь, Уфа, Челябинск, Красноярск, Ханты-Мансийск, Иркутск, Курган, Оренбург, Омск, Томск, Барнаул, Новокузнецк, Кемерово, Абакан, Чита, Якутск, Южно-Сахалинск, Петропавловск-Камчатский и страны ближнего зарубежья: Белоруссия, Украина, Казахстан