Добро пожаловать на http://vipplan.ru

Випплан Дмитров - это тысячи проектов домов в нашем каталоге!

Вы всегда сможете найти для себя проект дома вашей мечты! Даже если этого не случилось, мы готовы в любую минуту предложить проект индивидуального дома.

Забыли пароль?
Вы еще не регистрировались?

Перейдите по ссылке ниже на страницу регистрации.

Регистрация...

Внимание!!!

В проектную документацию могут быть внесены изменения любой сложности, в соответствии в Вашими пожеланиями!

Полезные статьи

Перекрытия в доме

Перекрытия – одно из важнейших составляющих строящегося дома. Это горизонтальная внутренняя защитная конструкция, разделяющая по уровню смежные помещения дома. По назначению выделяют подвальные, межэтажные и чердачные перекрытия. При проектировании домов и зданий различного назначения, требования к межэтажным перекрытиям определяются их местоположением и функциями разделяемых помещений: надподвальные, межэтажные, чердачные и т.д....

Выбор сайдинга

Прежде чем купить сайдинг, нужно определиться зачем он нужен: для защиты фасада от непогоды, для придания привлекательности внешнему виду дома или для утепления дома.Что же из себя представляет сайдинг? Сайдинг – это материал для облицовки фасада из компаунда. В данной статье мы поможем Вам определиться выбором сайдинга для отделки фасада дома...

Проекты домов и коттеджей > Каталог проектов домов > Дом с мансардой, погребом и навесом для автомобиля Vg2389

Дом с мансардой, погребом и навесом для автомобиля Vg2389

Дом с мансардой, погребом и навесом для автомобиля
Зарегистрируйтесь

Проект № Vg2389


Техническое описание
Общая площадь: 132.62 м2
Жилая площадь: 82.98 м2
Высота здания: 9.7 м
Размеры дома: 12.99м×9.68м
Кол-во комнат: 5
Цокольный этаж: есть
Гараж: нет
Мансарда: есть

Kонструкция
Фундамент: Ленточный монолитный ж/б
Перекрытия: Сборные ж/б плиты перекрытия и монолитное ж/б
Материал стен: Керамоблок

Архитектурный раздел
Конструктивный раздел
Инженерный раздел
АР+КР - 52 000 (Со скидкой 20%)
АР+КР+ИР - 98 550 (Со скидкой 50%)
Модель проекта индивидуального одноэтажного жилого дома с мансардой и погребом с размерами здания 12,99 x 9,68 м. Фундамент - ленточный монолитный ж/б. Наружные стены - керамический блок Poromax, утеплитель, вентилируемый зазор и отделка облицовочным кирпичом. Внутренние стены - керамический блок Poromax. Перегородки - забутовочный кирпич. Стойки - трубы стальные. Пол погреба и первого этажа (частично) - пол по грунту. Межэтажные перекрытия - монолитное ж/б и сборные ж/б плиты перекрытия. Крыша двускатная. Кровля - битумная черепица. Окна - металлопластиковые. Лестница - металлическая.
Генплан застройки участка / Паспорт проекта 7000 руб / 10000 руб
Инженерный раздел (полный) 46550 руб (66500 руб)
Смета на строительство 33250 руб
Теплотехнический расчет материалов стен Бесплатно
Стоимость проекта со незначительнми изменениями 61650 руб
Стоимость проекта со средними изменениями* 71700 руб
Стоимость проекта со значительными изменениями** 74300 руб

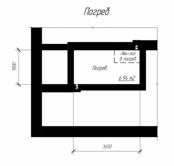
План цокольного этажа


Погреб - 6,94 кв м

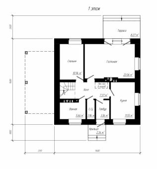
План первого этажа


Тамбур - 3,36 кв м
Холл - 7,37 кв м
С/у - 1,96 кв м
Ванная - 5,66 кв м
Спальня - 10,94 кв м
Гостиная - 22,06 кв м
Кухня - 11,55 кв м

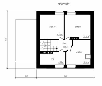
План мансардного этажа


Холл - 4,05 кв м
Спальня - 16,72 кв м
Спальня - 17,70 кв м
Спальня - 15,56 кв м
С/у - 8,75 кв м
Дом с мансардой, погребом и навесом для автомобиля Дом с мансардой, погребом и навесом для автомобиля Дом с мансардой, погребом и навесом для автомобиля Дом с мансардой, погребом и навесом для автомобиля

Модификации проектов

Внесение изменений и привязка к участку строительства

В любой из проектов от компании VIPplan - Дмитров по вашему желанию могут быть внесены изменения в материалы стен, материалы наружной отделки дома, а также будет произведена адаптация проекта под конкретный регион строительства (с учетом грунтов региона, геологических особенностей вашего участка и местных климатических условий) - БЕСПЛАТНО !!! (кроме проектов со скидкой и проектов наших партнеров).

Любой из проектов, размещенных на сайте dmitrov.vipplan.ru мы можем выполнить из требуемых вам строительных материалов: ячеистый бетон (газобетон, пеноблок), керамоблок, кирпич, шлакоблок, бетонный блок, дерево (брус, клееный брус), каркасная технология (деревянный каркас, металлокаркас (ЛСТК)).

Фасад дома и его наружную отделку так же возможно выполнить с применением различных облицовочных материалов: структурной штукатурки, (с утеплителем и без), сайдингом (пластиковый или металлосайдинг), фиброплитами, кирпича.

 
6 Избранные
проекты

Доставка проектов по России: Москва (Московская область), Санкт-Петербург (Ленинградская область), Краснодар, Ростов-на-Дону, Ставрополь, Сочи, Волгоград, Новосибирск, Белгород, Брянск, Воронеж, Саратов, Хабаровск, Астрахань, Нальчик, Владикавказ, Екатеринбург, Тюмень, Самара, Нижний Новгород, Казань, Пермь, Уфа, Челябинск, Красноярск, Ханты-Мансийск, Иркутск, Курган, Оренбург, Омск, Томск, Барнаул, Новокузнецк, Кемерово, Абакан, Чита, Якутск, Южно-Сахалинск, Петропавловск-Камчатский и страны ближнего зарубежья: Белоруссия, Украина, Казахстан