Добро пожаловать на http://vipplan.ru

Випплан Дмитров - это тысячи проектов домов в нашем каталоге!

Вы всегда сможете найти для себя проект дома вашей мечты! Даже если этого не случилось, мы готовы в любую минуту предложить проект индивидуального дома.

Забыли пароль?
Вы еще не регистрировались?

Перейдите по ссылке ниже на страницу регистрации.

Регистрация...

Внимание!!!

В проектную документацию могут быть внесены изменения любой сложности, в соответствии в Вашими пожеланиями!

Полезные статьи

Выбор сайдинга

Прежде чем купить сайдинг, нужно определиться зачем он нужен: для защиты фасада от непогоды, для придания привлекательности внешнему виду дома или для утепления дома.Что же из себя представляет сайдинг? Сайдинг – это материал для облицовки фасада из компаунда. В данной статье мы поможем Вам определиться выбором сайдинга для отделки фасада дома...

Где копать колодец?

Водоснабжение за городом - Дмитров всегда было проблематичным. При отсутствии центрального водоснабжения остается только один выход – выкопать колодец. Водоносный пласт есть не везде. Как же определить, где копать колодец?...

Проекты домов и коттеджей > Каталог проектов домов > Проект лаконичного одноэтажного дома с мансардой Vg2406

Проект лаконичного одноэтажного дома с мансардой Vg2406

Проект лаконичного одноэтажного дома с мансардой
Зарегистрируйтесь

Проект № Vg2406


Техническое описание
Общая площадь: 142.13 м2
Жилая площадь: 83.55 м2
Высота здания: 9.97 м
Размеры дома: 9.94м×9.96м
Кол-во комнат: 5
Цокольный этаж: нет
Гараж: нет
Мансарда: есть

Kонструкция
Фундамент: Ленточный монолитный ж/б
Перекрытия: Сборные ж/б плиты
Материал стен: Газобетон

Архитектурный раздел
Конструктивный раздел
АР+КР - 52 000 (Со скидкой 20%)
Модель проекта одноэтажного дома с мансардой с размерами здания 9,94 x 9,96 м. Наружная отделка здания – облицовочный кирпич. Фундамент – ленточный монолитный ж/б. Наружные стены – газобетонные блоки, минеральная вата, вентиляционный зазор, облицовочный кирпич. Внутренние стены и перегородки – газобетонные блоки. Пол 1 этажа - пол по сборным ж/б плитам. Межэтажное перекрытие - сборные ж/б плиты. Крыша двускатная. Кровля – металлочерепица. Окна — металлопластиковые.
Генплан застройки участка / Паспорт проекта 7000 руб / 10000 руб
Инженерный раздел (полный) 71000 руб
Смета на строительство 35500 руб
Теплотехнический расчет материалов стен Бесплатно
Стоимость проекта со незначительнми изменениями 61450 руб
Стоимость проекта со средними изменениями* 72100 руб
Стоимость проекта со значительными изменениями** 74900 руб

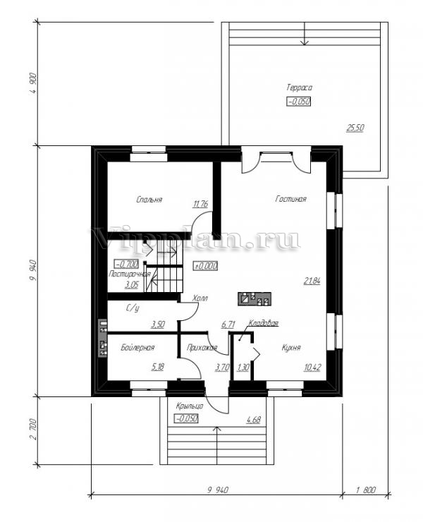
План первого этажа


Прихожая — 3,70 кв м
Холл — 6,71 кв м
Кладовая — 1,30 кв м
Кухня — 10,42 кв м
Гостиная — 21,84 кв м
Спальня — 11,76 кв м
Постирочная — 3,05 кв м
С/у — 3,50 кв м
Бойлерная — 5,18 кв м

Проект лаконичного одноэтажного дома с мансардой

Проект лаконичного одноэтажного дома с мансардой

План второго этажа


Холл — 10,08 кв м
Спальня — 14,40 кв м
Спальня — 19,76 кв м
Спальня — 15,79 кв м
С/у — 12,92 кв м
Балкон — 1,03 кв м
Балкон — 0,69 кв м
Проект лаконичного одноэтажного дома с мансардой Проект лаконичного одноэтажного дома с мансардой Проект лаконичного одноэтажного дома с мансардой Проект лаконичного одноэтажного дома с мансардой
Внесение изменений и привязка к участку строительства

В любой из проектов от компании VIPplan - Дмитров по вашему желанию могут быть внесены изменения в материалы стен, материалы наружной отделки дома, а также будет произведена адаптация проекта под конкретный регион строительства (с учетом грунтов региона, геологических особенностей вашего участка и местных климатических условий) - БЕСПЛАТНО !!! (кроме проектов со скидкой и проектов наших партнеров).

Любой из проектов, размещенных на сайте dmitrov.vipplan.ru мы можем выполнить из требуемых вам строительных материалов: ячеистый бетон (газобетон, пеноблок), керамоблок, кирпич, шлакоблок, бетонный блок, дерево (брус, клееный брус), каркасная технология (деревянный каркас, металлокаркас (ЛСТК)).

Фасад дома и его наружную отделку так же возможно выполнить с применением различных облицовочных материалов: структурной штукатурки, (с утеплителем и без), сайдингом (пластиковый или металлосайдинг), фиброплитами, кирпича.

 
6 Избранные
проекты

Доставка проектов по России: Москва (Московская область), Санкт-Петербург (Ленинградская область), Краснодар, Ростов-на-Дону, Ставрополь, Сочи, Волгоград, Новосибирск, Белгород, Брянск, Воронеж, Саратов, Хабаровск, Астрахань, Нальчик, Владикавказ, Екатеринбург, Тюмень, Самара, Нижний Новгород, Казань, Пермь, Уфа, Челябинск, Красноярск, Ханты-Мансийск, Иркутск, Курган, Оренбург, Омск, Томск, Барнаул, Новокузнецк, Кемерово, Абакан, Чита, Якутск, Южно-Сахалинск, Петропавловск-Камчатский и страны ближнего зарубежья: Белоруссия, Украина, Казахстан