Добро пожаловать на http://vipplan.ru

Випплан Дмитров - это тысячи проектов домов в нашем каталоге!

Вы всегда сможете найти для себя проект дома вашей мечты! Даже если этого не случилось, мы готовы в любую минуту предложить проект индивидуального дома.

Забыли пароль?
Вы еще не регистрировались?

Перейдите по ссылке ниже на страницу регистрации.

Регистрация...

Внимание!!!

В проектную документацию могут быть внесены изменения любой сложности, в соответствии в Вашими пожеланиями!

Полезные статьи

Виды фундаментов

Можно смело сказать, что самое главное качество фундамента - надежность. Фундамент дома бывает нескольких видов. Все они отличаются прочностью, технологией закладывания и областью использования. Запомните, экономить на фундаменте – плохая идея. Затраты на ремонт будут огромными, а зачастую в случае нарушения технологии закладки фундамента исправить ошибку будет невозможно....

Проекты быстровозводимых домов и коттеджей в Дмитрове

Некоторые люди до сих пор считают, что быстровозводимые дома представляют собой безликие, недолговечные, однотипные строения. Эти утверждения не соответствуют действительности. На данный момент, строительные технологии шагнули вперед и дома «быстрого приготовления» считаются эталоном комфорта, уюта и даже выделяются, в архитектурном плане, на фоне дорогих кирпичных коттеджей. Быстровозводимые дома не дорогие и изготавливаются в кратчайшие сроки....

Проекты домов и коттеджей > Каталог проектов домов > Одноэтажный дом с мансардой, гаражом, террасами и балконом Vg2740

Одноэтажный дом с мансардой, гаражом, террасами и балконом Vg2740

Одноэтажный дом с мансардой, гаражом, террасами и балконом
Зарегистрируйтесь

Проект № Vg2740


Техническое описание
Общая площадь: 309.62 м2
Жилая площадь: 141.73 м2
Высота здания: 9.85 м
Размеры дома: 23.32м×15.02м
Кол-во комнат: 5
Цокольный этаж: нет
Гараж: нет
Мансарда: есть

Kонструкция
Фундамент: монолитная плита
Перекрытия: монолитная плита

Архитектурный раздел
Конструктивный раздел
АР+КР - 84 000 (Со скидкой 20%)
Одноэтажный дом с мансардой, гаражом, террасами и балконом с размерами здания 23,32 x 15,02 м. Фундамент - монолитная ж/б плита на поверхности. Наружные стены - газобетонный блок, минераловатные плиты, фасадная штукатурка. Внутренние стены - газобетонный блок. Перегородки - газобетонный блок. Пол 1 этажа - пол по фундаментной плите. Межэтажное перекрытие - монолитное ж/б. Крыша - многоскатная. Кровля - металлочерепица. Лестница - металлическая. Окна - металлопластиковые.
Генплан застройки участка / Паспорт проекта 7000 руб / 10000 руб
Инженерный раздел (полный) 155000 руб
Смета на строительство 77500 руб
Теплотехнический расчет материалов стен Бесплатно
Стоимость проекта со незначительнми изменениями 97250 руб
Стоимость проекта со средними изменениями* 120500 руб
Стоимость проекта со значительными изменениями** 126700 руб

План первого этажа


Прихожая - 7,96 м
Холл - 11,30 м2
Подсобка - 13,87 м2
Гараж - 18,56 м2
Кабинет - 11,86 м2
Гостиная - 29,64 м2
Кухня - 33,02 м2
Кладовая - 5,28 м2
Бойлерная - 7,68 м2
С/у - 2,88 м2

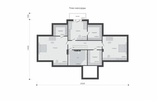
План мансардного этажа


Холл - 14,02 м2
Спальня - 34,04 м2
Кладовая - 12,77 м2
С/у - 16,50 м2
Спальня - 44,80 м2
Гардероб - 9,32 м2
Спальня - 21,39 м2
Гардероб - 12,94 м2
Балкон - 1,80* м2
Одноэтажный дом с мансардой, гаражом, террасами и балконом Одноэтажный дом с мансардой, гаражом, террасами и балконом Одноэтажный дом с мансардой, гаражом, террасами и балконом Одноэтажный дом с мансардой, гаражом, террасами и балконом
Внесение изменений и привязка к участку строительства

В любой из проектов от компании VIPplan - Дмитров по вашему желанию могут быть внесены изменения в материалы стен, материалы наружной отделки дома, а также будет произведена адаптация проекта под конкретный регион строительства (с учетом грунтов региона, геологических особенностей вашего участка и местных климатических условий) - БЕСПЛАТНО !!! (кроме проектов со скидкой и проектов наших партнеров).

Любой из проектов, размещенных на сайте dmitrov.vipplan.ru мы можем выполнить из требуемых вам строительных материалов: ячеистый бетон (газобетон, пеноблок), керамоблок, кирпич, шлакоблок, бетонный блок, дерево (брус, клееный брус), каркасная технология (деревянный каркас, металлокаркас (ЛСТК)).

Фасад дома и его наружную отделку так же возможно выполнить с применением различных облицовочных материалов: структурной штукатурки, (с утеплителем и без), сайдингом (пластиковый или металлосайдинг), фиброплитами, кирпича.

 
6 Избранные
проекты

Доставка проектов по России: Москва (Московская область), Санкт-Петербург (Ленинградская область), Краснодар, Ростов-на-Дону, Ставрополь, Сочи, Волгоград, Новосибирск, Белгород, Брянск, Воронеж, Саратов, Хабаровск, Астрахань, Нальчик, Владикавказ, Екатеринбург, Тюмень, Самара, Нижний Новгород, Казань, Пермь, Уфа, Челябинск, Красноярск, Ханты-Мансийск, Иркутск, Курган, Оренбург, Омск, Томск, Барнаул, Новокузнецк, Кемерово, Абакан, Чита, Якутск, Южно-Сахалинск, Петропавловск-Камчатский и страны ближнего зарубежья: Белоруссия, Украина, Казахстан